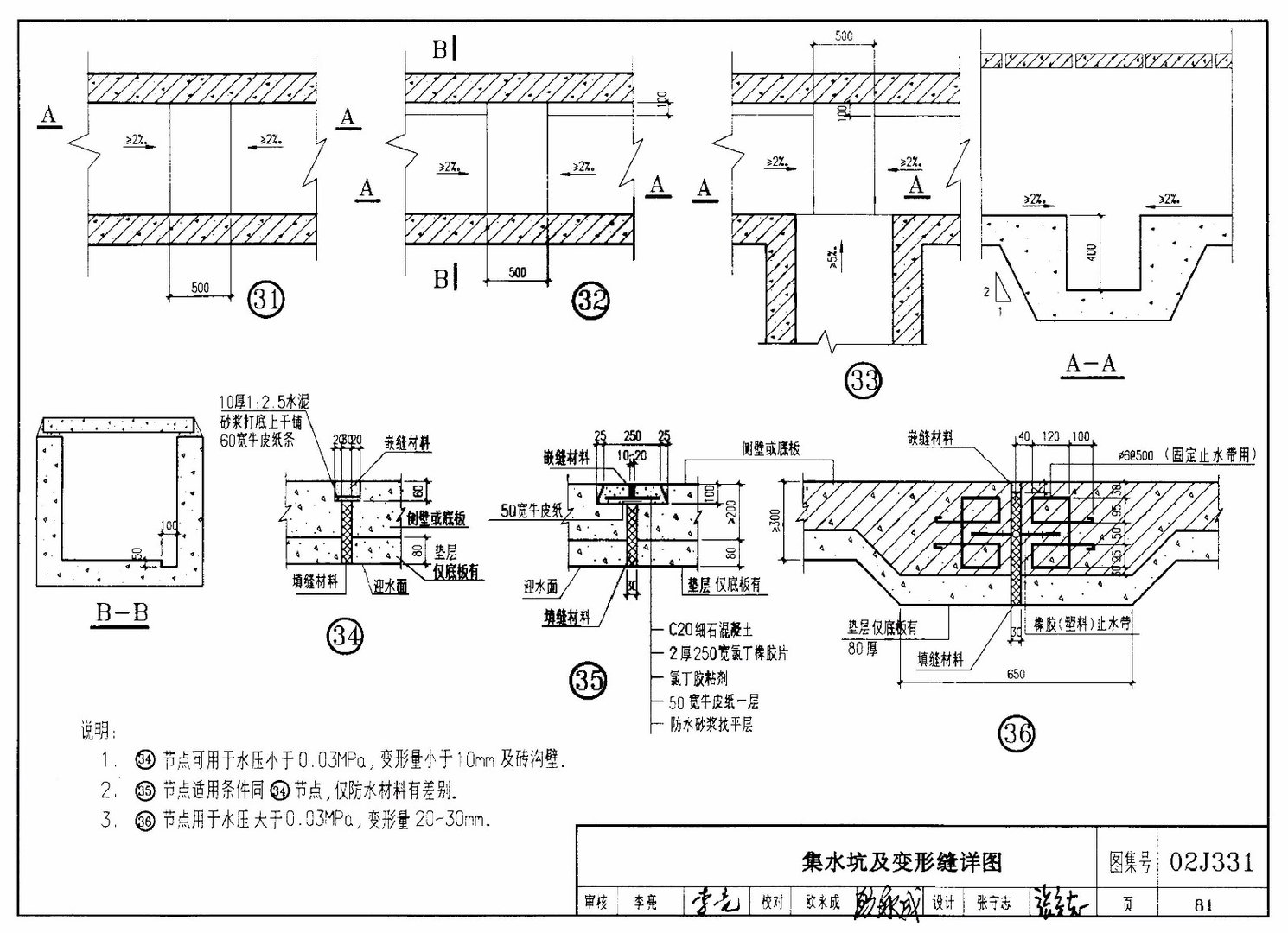
您的位置首页百科问答 02J331第81页34详图 Simone 发布于 2026-02-21 17:50:37 890 阅读 02J331第81页34详图的有关信息介绍如下:02J331第81页(包括34详图)见下附件。2967×2151像素图片,请点击放大后查看或下载(另存为),希望能够帮到你。